根据首文科集团工作部署,2024年5月委托北京首文科文创置业公司管理北京弘科运营管理有限公司。北京弘科运营管理有限公司持有弘善家园413号楼资产,北京首文科文创置业有限公司作为其托管方,现对位于朝阳区弘善家园A区413号楼部分底商空间进行公开招租,诚邀符合条件的企业参与租赁。
招租内容
【出租方名称】
北京弘科运营管理有限公司
【项目位置】
北京市朝阳区弘善家园A区413号楼(北邻中国医学科学院肿瘤医院东院)。
【空间及租金】
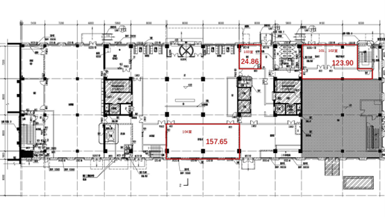
1. 租赁区域:1层101室、102室、103室、104室,建筑面积共计306.41平方米,整体租赁不分租。
2. 租金价格:
101-103室:148.76平方米,租金12元/平方米/天(不含物业费);
104室:157.65平方米,租金6元/平方米/天(不含物业费)。
3. 租金递增:每三年递增5%。
4. 支付方式:按季度支付,押三付三。
5. 招商业态:药店、医疗机构等(需符合规划用途)、便利店、咖啡店、面包房。
6. 物业费标准:0.9元/平方米/天。
7. 市政费用(水、电、暖等):由承租方承担。
【租赁期限】
五年。
项目简介
【项目权属与用途】
产权类型:国有建设用地使用权/房屋所有权。
规划用途:非配套商业、办公、非配套停车场。
【项目面积】
占地面积:5332.19平方米 总建筑面积:29168.47平方米。
【项目优势】
1.位置优越,紧邻东二环、弘善家园社区及肿瘤医院;
2.已招商酒店、办公客户;
3.配套齐全,含内部食堂、停车场等;
4.交通便利,近地铁10号线、14号线、19号线。
【市政条件】
供水:市政自来水、中水; 供暖:市政集中供暖;
制冷:VRV空调系统,分层控制; 用电:总负荷7,700KVA。
【车位配套】
约100个停车位。
【经营与改造说明】
1.承租方需遵守相关法律法规,确保经营内容符合规划用途;如需装修改造,须事先获得出租方书面同意;
2.因101-102室紧邻供电局开闭站,因此,改造和经营过程中须符合相关规定,确保安全经营。
报名事项
【公告与报名时间】
即日起至2025年12月28日
【报名联系人】
联系人:王庆云; 电话:18601380322; 邮箱:18601380322@163.com
【报名方式】
意向承租方请于公告期内联系报名联系人获取报名材料清单。
承租方资格条件
2. 具备相应的资金实力(企业注册资本金不低于200万)与经营能力;
【项目实景图】

1层大堂(东侧方向)

1层招租范围平面图




